EFTA00007859.pdf
VOL00004 5 pages 19 redactions 18.5% redacted
Help categorize this page (click to add/remove your vote)
1 redactions
7 redactions
6 redactions
5 redactions
EFTA00007859
eel% Town of Palm Beach A pe Police Department I st ick' EVIDENCE CASEY 65^ 1CA? PROPERTY/ DC' /On CONTENTS (2-4‘443 Item Quantity Description 3 \e'er Piri.nr Suspect: s cum it Warta . Date:fir 20 • Or Lab*: RL•231 EFTA00007860
•
•
•
•
ZR.S7VE [TROT. VIP., -MSt.{.
.4.4.- UV.; ,ir:GTALL NE./
\
.4.4. Ptii-r .4 cili:Pr..1
RELOCATE ExAT C.o"....ii., T&-2t.
4 Cass4o015irik., ...ill
"ra Pits/ MO
..7 0..... yhez P...D 'city T.G.
PER MIA ~Larking. _ ,i
\-
AIR. PTE4A•LT COIL.4244. pa..k...-. .
isa•-a, T. Cie <sate_ , G ER GETCRIAIL,
br 74.4:17/6 0.1-ri Osl• op /,x....7
D rorc.
♦•
4,1:17144.
•Is
.1
twat
liaubL
•
6~
i4to.
Ert.sityt. Teecatc
oge. RAVER iwa. Rirsto'
INSTALL clew g.e.Dcacnat
- riercivtal.EC
;,-
74EL/ccii4R-TERRAGG rw
lac4 Gapi ITAvIR, (AS)
sie.,44.1.
,2-Qmovt ERA-.
pece
EALAWR,
ez;crli or
--biRvi-LA: no 4 .$,TAU-
R.,2174“
<
Ei
...g-
.a4rT 4 .fibT•44.
&C.
• E. 1.51 To
Cairn' •ivr. Fe-1A
rant 4.A-oT
HEAT% F ww4AGE
to 44.0i TS' otA FRIA
rt
Y
f4R-4
Peri>4. awe*
• W. LAC,
ii.issrALL
(FS
atria)
Gitleas, PAatir
Exydr. rloToGUO GARAcvE
Cww•tso R Rbis•-•1
KITCIaerJ
-------
e
Iger, e'de D0•01'.
PuriPs. Fitgass
iiicer. arc. REPIOJE. 44,J.
Igavexttile. aware,. ticape
•
esior...1. IC Se true.,
IA FAO nil
407.1.1-
/4e+. -ma+.< ria.irla, lO rimc44.
raia-~ao
r1010- SoieAL STAIR -4- •
Taco
•
•
—44ALtki
• MOT
l,
Ittinr.Pg
zen Aet,t ,
,9
a„„,4
S,
41 71
FI
11 co
a- -
isl'atAl‘i Ag,i, ti,kteal si.ccia.
ATOP Riitit SROsiL
•C42(. 4.•
•-1.(...44i 4 isnitizr.
_
_
_
E4 rip. Ai.i....lovwc.,
0
1
ilAicwt....t.,(srs•
•
'
Tv
L
1
trisår cEå
~Lark, AG R4.-wt, Yo
AGGoil Ogg. 4441TRZ'a
C-rfiRe.sor. eab-siew
1
'
V!...-11.M, &On
--
__ . - 177-17.,tigat
Crietbt
PW-19•Tior4 ei-LITTEL1/43
p r- - - _
occe
CiarZart
Kborl
_
- -
I •
OlrIIrIG goori
L
-•
EiT
%kg P
-
_ _
FO ;'GC ,
irm.1.1. 46, Lay.irigeo
,r
.-015{KLL
P.to
•
CI^
/
114~14
F1.4.4fl
iaN
4(1
-
~Eit> GL, issistt.
aP
_
'31
\
i•is.- 44.i. .'td
Yloicigit-60
si.s>r4e. Cioilt.
C
CitivfAiScr
"rivi raj
s
• '
>
ht.-4 &pixel CDs* 'au.—
Ta\ c/..iciapt'l
•
i)
,
\j
kpte..yogicj
~LT -.a
\T. Tum L
•
A
{its, ccit.4
isp•
•
i••...
1
1. —
-
Too R.A. to ea Alan""Al
2:o NOT aw-Lkoit CooeF ?Areas.
tatty
PKG.
c
r
EAti ocx>f 7 014ber
•
GUEST Roar).
GUStr itochis2
CitlEtt X1 . 5
1.1ou ggepes
coal
_ 4 —Koff ovecileki
'NALCO
fterove. wuJooM,r. CUT rteozonley
°oval To rtooa LEvv,L. a4411.44.L
wo,O Dace,.
mo:ar
tept....m tW
elrrie.A.:
he Cram
vetlistie
0
eke Limas-
t,X.Tegefect4I
Mel t&
e:E.OCCer
-
fi
dog
14
—
44114. EJEV CRelerla
TOP SAL lett
ALloopNuri
Ge-letAL biaresz
'24 t i To et
YOsoALA TLC. 04 cLo.:".
•
1.0144.4. FAL gegielt CeAreTtler."
frate 7. et
7. nc rtAetso Erie W.
2. Ctalleb
• 5 1c St WS sett,
MAAPA.E. 71.e....1 +-ALLA
OitAvattAjo te-to.rf f Veal
rLaotn To so, 3.e'elseb.
FLoovo To tee cs-c.es+
eo
tr.."-04 Ele:v14, 444.
ERWael 041 Tee 4.. t Plaza c1.4)
”I-4..L.L. New cizeh.,4 t+nAcith.,
Gael koartt N is
°b.
mai
cs../ Et Tv
M'..1 "co{ 44
.4
. _
•
I ‘.../Erdr
; Ecoc TECO2C4.
'0144.
trbeA ciicc
Cos
NK.4 ezankNi
:zee.... te.r..
O.-C40.
HiVisi LL Oita fraikkes
re HAL To 2C. TAAL
4. iNoTALL. clew Doolteo. fecoee-•to
Coo, NLb r.o.¢g.EO
5 Ithalle.LL ?abet Gv8
PoLLTioN,
ileadie, Arra
to A.C. 5.2 C.orITEK:Hog. "s14-1
flab€
Seksee O. % . FbC
tioSSCATeael'a To AG. terwpi
blebeler Reale ran Pylon.
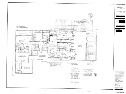
EPSTEIN
RESIDENCE
358 El Brine Way
Palm Beach, Florida
'AL I
BEACH.
FLA.
NO.
DESCRIPTICLN
ItATE
REVIS/ONS
DRAWING TITLE
eaal40
FLOCK fiShl
SCALE V igil-CI.'
atTE 4.4 M4
e
"
I
An
PROJECT NO.
DRAWING NO.
A-2.
EFTA00007862
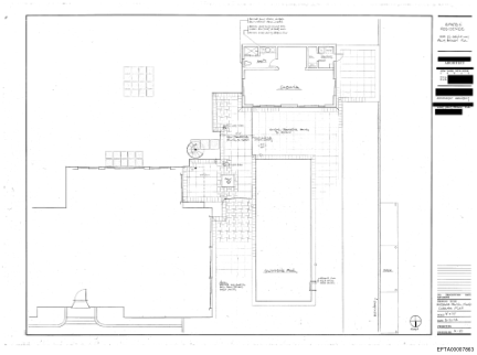
I CaMovt Earn" Ooort , iti.,7.11 ,E.., %., Woad- irkU.../ 40S. d ‘NN, fV40.4. eXIST 1.21ET 1 Car pa er.4.41. tit.' l'aLIT 1.1 Isrtir bal.:. CEMovr, Erittf ~41T,II4MALL. tk.., • EP6TEi NI REST DEIJGE 5ss fwbLL o ,arr øst.ri b53.444 ARCHITECT NEW YORK. NEW YORK I 0 0 2 I TEL: PAC: Actcameo tb~i NO. DESCRIPTION DATE REVISIONS ~INC TITLE ElfraglEiC PA,ANItn Ptak cAsanIA. SCALE 14' s .1-c" DATE 3.23-94 PROJECT Nn DRAVENCI,p, - IS EFTA00007863
Size: 770 x 551 pixels
Surrounding text: EFTA00007859
Large redaction (~85 chars)
Size: 100 x 13 pixels
Small redaction (~11 chars)
Size: 115 x 10 pixels
Small redaction (~12 chars)
Size: 71 x 25 pixels
Small redaction (~7 chars)
Size: 43 x 12 pixels
Small redaction (~4 chars)
Size: 47 x 12 pixels
Small redaction (~5 chars)
Size: 112 x 10 pixels
Small redaction (~12 chars)
Size: 66 x 17 pixels
Small redaction (~7 chars)
Size: 97 x 16 pixels
Small redaction (~10 chars)
Size: 112 x 11 pixels
Small redaction (~12 chars)
Size: 74 x 29 pixels
Small redaction (~8 chars)
Size: 95 x 16 pixels
Surrounding text: i]
Small redaction (~10 chars)
Size: 108 x 13 pixels
Surrounding text: EE BEACH, FLA
Small redaction (~12 chars)
Size: 70 x 21 pixels
Surrounding text: ces BEACH, FLA
Small redaction (~7 chars)
Size: 99 x 12 pixels
Surrounding text: ARCHITECT CT
Small redaction (~11 chars)
Size: 76 x 26 pixels
Surrounding text: NEW YORK, NEW YORK
Small redaction (~8 chars)
Size: 111 x 21 pixels
Small redaction (~12 chars)
Size: 122 x 12 pixels
Small redaction (~13 chars)
Size: 81 x 16 pixels
Small redaction (~9 chars)
- Aatir Exydr (p.3) 50%
- Aetso Erie (p.4) 5%
- El Brine (p.4) 75%
- Et Tv (p.4) 5%
- Goil Ogg (p.3) 50%
- Item Quantity (p.2) 50%
- Itn Ptak (p.5) 5%
- La Cov (p.3) 50%
- Laotn To (p.4) 5%
- Lkoit Cooe (p.4) 50%
- Loovo To (p.4) 5%
- Movt Earn (p.5) 5%
- Nuri Ge (p.4) 95%
- Or Lab (p.2) 50%
- To Cairn (p.3) 50%
- Zart Kborl (p.3) 50%
- 358 El Brine Way (p.4) address
- Cairn (p.3) location
- Coo (p.4) location
- Crietbt PW (p.3) location
- Florida (p.3) state
- Florida (p.4) state
- New York (p.5) state
- Palm Beach (p.2) city
- Palm Beach (p.4) city
- RESIDENCE (p.3) location
- RESIDENCE (p.4) location
- File Path
- VOL00004/IMAGES/0001/EFTA00007859.pdf
- File Size
- 1,845 KB
- Processed
- 2025-12-20 18:12
- Status
- completed
-
EFTA00007853.pdf
VOL00004 - 6 pages
0 shared people 4 shared places -
EFTA00007893.pdf
VOL00004 - 63 pages
0 shared people 4 shared places -
059.pdf
Unknown - 710 pages
0 shared people 4 shared places -
773-04 (1).pdf
Unknown - 5 pages
0 shared people 3 shared places -
186-50.pdf
Unknown - 41 pages
0 shared people 3 shared places -
166.pdf
Unknown - 160 pages
0 shared people 3 shared places -
EFTA00006025.pdf
VOL00004 - 11 pages
0 shared people 3 shared places -
Interview Transcript - Maxwell 2025.07.24 (Redacted) (6).pdf
Unknown - 263 pages
0 shared people 3 shared places -
205.pdf
Unknown - 91 pages
0 shared people 3 shared places -
171.pdf
Unknown - 175 pages
0 shared people 3 shared places -
Interview Transcript - Maxwell 2025.07.24 (Redacted) (1).pdf
Unknown - 263 pages
0 shared people 3 shared places -
1078-5.pdf
Unknown - 161 pages
0 shared people 3 shared places -
EFTA00007600.pdf
VOL00004 - 6 pages
0 shared people 3 shared places -
EFTA00008320.pdf
VOL00004 - 89 pages
0 shared people 3 shared places -
074.pdf
Unknown - 338 pages
0 shared people 3 shared places